售楼处电话
400-888-9999
联系客服
400-888-9999
碧桂园海棠墅在售洋房、别墅,洋房建面107㎡3+1房,叠墅下叠约154㎡,带首层花园及地下室,上叠约159㎡,带天台,洋房均价30000元/㎡,叠墅总价500万/套起,洋房层高约3.1m或约2.9m,叠墅层高约3.3-3.5m,装修交付,配部分家电,新中式风格装修风格,项目位于海南省三亚市海棠湾南田温泉度假区南田片区(藤桥高速出口南田温泉方向)。
以上信息仅供参考,想了解楼盘更多详情,获取楼盘优惠信息,欢迎来电咨询!

鸟瞰图
项目简介:
物业公司:碧桂园物业
占地面积:约50亩
计容面积:约33300㎡
容积率:1.0
绿化率:40%
物业费:待定
产权年限:住宅70年产权

效果图
楼栋总数:13栋楼(洋房3幢,叠墅10幢)
总户数:洋房83户,叠墅156户
停车位:334个
车位配比:超1:1
梯户比:一梯两户

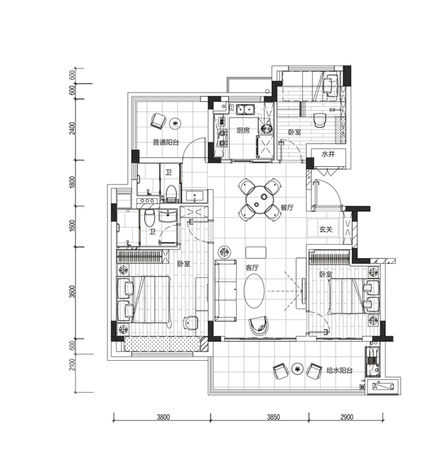
洋房建面107㎡3+1房
洋房装修交付标准
●玄关:玄关柜,
●厨房:老板品牌的炉具,抽油烟机,洗碗机;安装凉霸
●洁具:筑智智能马桶、筑智陶瓷盆
●五金:卫生间龙头、花洒,厨房龙头,洗菜盆,选用贝朗品牌。
●地砖:欧神诺、圣凡尔赛
●大门:配飞利浦智能门锁
●空调:美的分体空调
●开关: 罗格朗插座,昇辉智能开关
●其他:美的冰箱、美的洗衣机

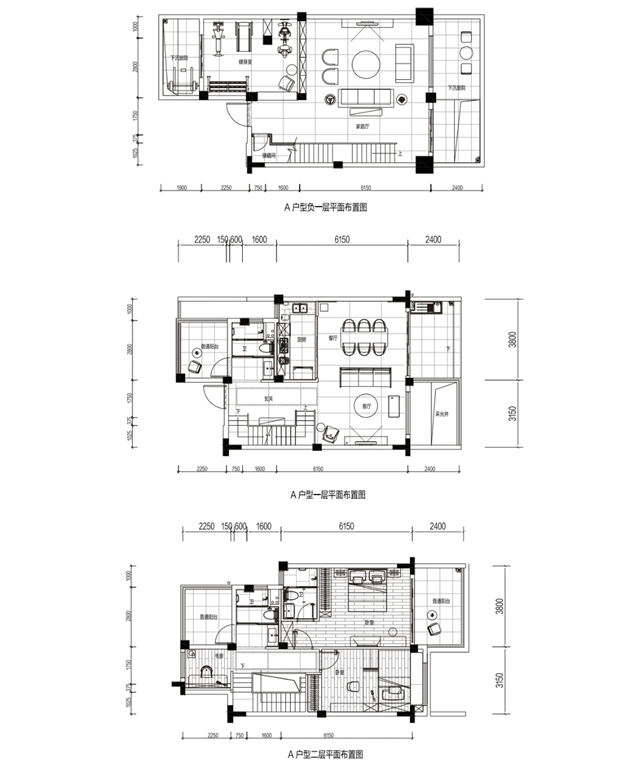
叠墅下叠约154㎡,带首层花园及地下室

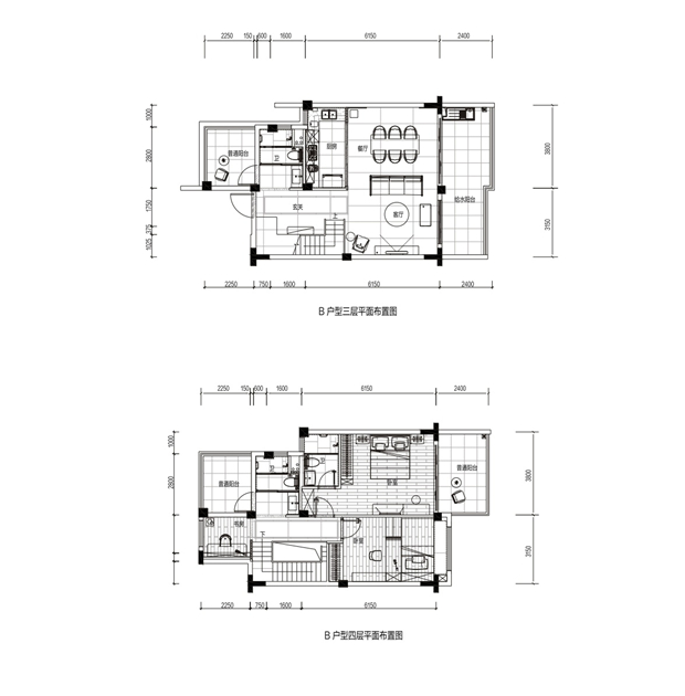
上叠约159㎡,带天台
叠墅装修交付标准
●玄关:玄关柜,
●厨房:西门子品牌的炉具,抽油烟机,洗碗机;
●过滤:安心家牌或安吉尔牌滤水器
●洁具:筑智智能马桶、筑智陶瓷盆
●五金:卫生间龙头、花洒,厨房龙头,洗菜盆,选用汉斯格雅品牌。
●首层大门:天山品牌铸铝装甲门配飞利浦智能门锁
●空调:全屋日立品牌中央空调
●开关: 罗格朗插座,昇辉智能开关
●其他:西门子冰箱、洗衣机,好太太电动晾衣架

效果图
怕买贵?怕被坑?
专业顾问帮你越过营销陷阱
获取最新动态信息 我们将第一时间以短信的方式通知您
楼盘信息由开发商提供,最终以政府部门登记备案为准,请谨慎核查。本站所有房源均为"一房一价"。如该楼盘信息有误,您可以投诉或拔打举报电话:400-888-9999.