售楼处电话
400-888-9999
联系客服
400-888-9999
项目位于三亚总部经济月川片区,奢享醇熟城市配套与自贸时代红利,以现代东方美学勾勒,打造富有“典雅、闲适、艺术、轻奢”等多重标签,打造城市高端低密住宅标杆。
项目简介:
占地面积:约14344㎡
建筑高度:5层层高
建筑面积:一期7512 ㎡
容积率:1.2
绿化率:40%
总户数:一期69套
停车位:机动车位150个
交房时间:一期暂定为2023年3月30日
产权:70年住宅性质
项目地址:三亚市吉阳区月川小学旁

意向图
八大核心价值
【价值一】时代红利,全球最大的自由贸易港
全岛将建设为自由贸易港试验区、国家重大战略服务保障区、全面深化改革开放试验区、国家生态文明试验区、中国特色自由贸易港、国际旅游消费中心。 到2025年将初步建立以贸易自由便利和投资自由便利为重点的自由贸易港,到2035年成为中国开放型经济新高地,到本世纪中叶全面建成具有较强国际影响力的高水平自由贸易港。

意向图
【价值二】屹立时代前沿,位于三亚中央商务区内
《中国(海南)自由贸易试验区三亚总部经济及中央商务启动区控制详细规划》正式对外公布,规划中明确三亚总部经济及中央商务启动区含凤凰海岸、月川、东岸、海罗4个片区。华亚·云玺项目位于三亚总部经济区内,属于月川片区,区域集商业设施、商务办公、商务设施配套以及娱乐康体等一体,将建设国际商业文化步行街和综合商务区。

意向图
【价值三】北纬18°三亚,中国度假向往
三亚是中国唯一一个地处于北纬18°的热带滨海城市,与享誉国际的夏威夷、迈阿密、坎昆等世界度假胜地处于同一黄金维度上。这里长夏无冬,年均气温25.5°,此外三亚绿植覆盖率高达68%,负氧离子含量高达1万个/cm³。

意向图
【价值四】华亚地产,高端品质人居建造者
福建华亚集团成立于2002年,资产总额超过120亿元。战略布局遍布中国东南、 西南、华北、华南四大区域,旗下控股公司及项目公司30多家。华亚地产是福建华亚集团旗下的地产公司,开发产品业态丰富,业务遍布北京、福建、海南及四川等地。在海南砥砺前行,以⼀岛四地六子的布局,规划海口世茂秀英里、琼海幸福里、万宁花园、万宁欢乐城、万宁海岛假日以及三亚云玺项目等,志在成为“高端品质人居建造者”。
【价值五】城市中心,全方位便捷的交通系统
华亚·云玺位于迎宾路与河东路的交汇处,享受周边“四纵三横”的交通网络。四纵为榆亚大道、新风路、迎宾路、金鸡岭路;三横为三亚湾路、解放路、凤凰路。距凤凰国际机场约 11 公里、三亚动车站约 5 公里、亚洲最大的邮轮母港约3 公里、环岛高速口约7公里,处于交通枢纽,尽享三亚都市繁华。

区位图
【价值六】城芯生活,出入皆缤纷
项目位于三亚城芯,兼享自然静谧与城市繁华的栖居板块,奢享醇熟城市配套,汇聚政务中心、文化体育、教育医疗以及商务办公等多元功能,缤纷生活随处可遇。

意向图
休闲娱乐:
项目周边度假配套一应俱全,近享千古情大剧院、美丽之冠大剧院、红色娘子军演绎等缤纷休闲配套;30分钟全面覆盖三亚湾、亚龙湾、海棠湾酒店群如艾迪逊、红树林、喜来登、万丽、美高梅等高端品牌。直线抵达海棠湾亚特兰蒂斯与保利瑰丽酒店,度假缤纷随时悦享。

意向图
商务金融:
项目所在片区是最高端商务集群,目前已有世茂、保利、五矿、太平金服等众多世界500强企业已进驻开发;在马太效应下,周边分布着各大高端商业综合体,涵盖高端餐饮和进口精品超市、高端健身会所、恒温泳池、国际影院、私人高端商务会所、顶级企业会所、天空酒廊以及约17 万m²的国际滨水商业步行街等。

意向图
购物商圈:
距三亚网红商圈青春颂广场仅300米,同时邻近蓝海购物广场、阳光金融广场、红树林、步行街等中高端商圈;距海旅免税城仅4公里,距海棠湾国际免税城36公里,全方位满足日常生活衣、食、住、行、游、购、娱全纬度生活。

意向图
教育资源:
项目紧临月川小学、三亚市一中、市五中、第七小学、三亚实验中学、各大精品幼儿园;月川小学在今年的1月份被教育部命名全国青少年校园足球特色学校。

意向图
生活配套:
周边有丹州市场、三亚市第一、第二、第三农贸市场以及鸿港市场内均可购买到新鲜的瓜果蔬菜,海鲜等,种类丰富,能满足您及家人日常生活需求。

意向图
医疗资源:
项目周边三甲医院配套完善,距三亚中心医院仅1.3公里,距离三亚人民医院约 1.8 公里。距离全省最大规模的妇幼保健院约 5 公里,可快速享受医疗健康服务。

意向图
公园环绕:
项目所在片区自然生态环境优越,目前已建成的公园有:金鸡岭桥头公园、临春岭公园、月川中轴带状公园、东岸湿地公园,呼吸也是一种颐养。

意向图
【价值七】大师手笔,打造现代东方诗意栖居生活
特邀国内知名景观设计团队山水比德公司主笔,秉承“诗意栖居,传承创新”的理念,在园区规划中汲取新东方极简文化精华,打造私密围合“大隐于市”的生活场景;遵循“建筑从大自然中生长”的理念,梳理自然、人文积淀,成就城市高端住宅标杆。

意向图
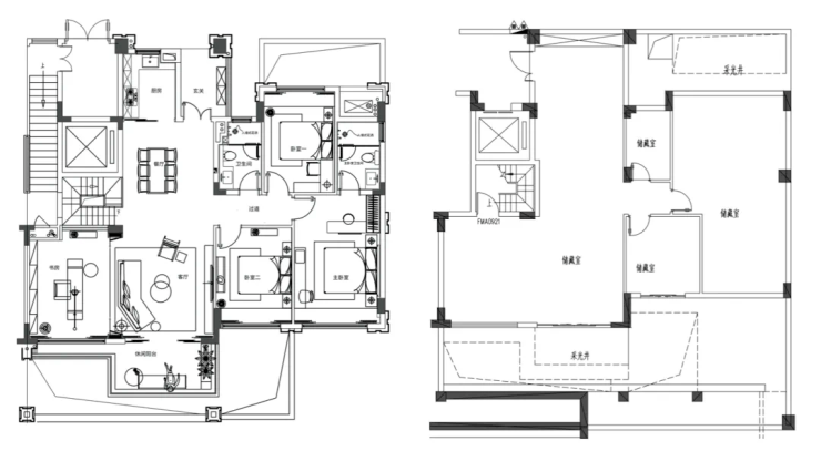
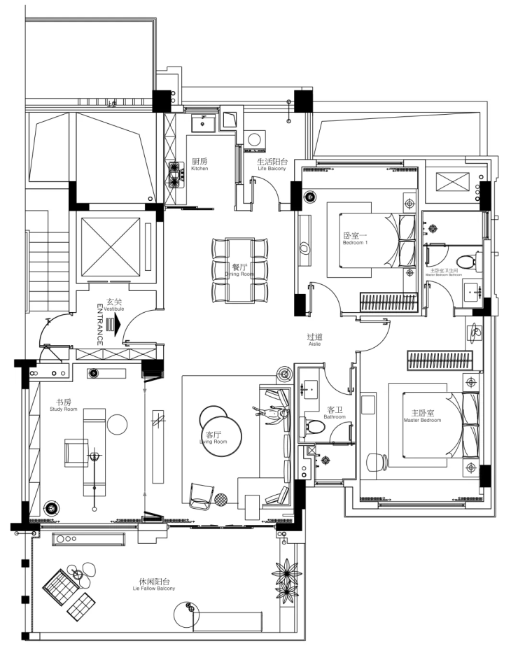
【价值八】时代臻品,纯板式墅质洋房
南北通透,5层低密洋房。一梯一户,墅质体验,将人居升华为一种享受。南北双阳台、超大横厅设计,室内动静分区合理,高拓展空间,以人居舒适度甄别生活品质。
低密洋房:纯板式建筑,以阔绰低密媲美墅质享受;
南北阳台:户户南北双景观平台,通透性绝佳;
一梯一户:一梯一户舒适空间,保障业主私密性;
奢阔空间:大面宽灵动横厅设计,动静分离,奢阔主卧套房;
拓展空间:一楼拓展地下室,顶楼拓展露台。
户型鉴赏




怕买贵?怕被坑?
专业顾问帮你越过营销陷阱
获取最新动态信息 我们将第一时间以短信的方式通知您
楼盘信息由开发商提供,最终以政府部门登记备案为准,请谨慎核查。本站所有房源均为"一房一价"。如该楼盘信息有误,您可以投诉或拔打举报电话:400-888-9999.